Габаритные размеры ВР 140-40
Габаритные размеры вентиляторов радиальных пылевых ВР 140-40

Положение корпуса вентиляторов ВР 140-40 исп-1.
| № вентилятора |
Пр135°, Л135° |
Пр270°, Л270° |
Пр315°, Л315° |
|
B |
b |
H |
B |
b |
H |
B |
b |
H |
| 2,5 |
535 |
210 |
241 |
409 |
225 |
194 |
535 |
210 |
179 |
| 3,15 |
663 |
283 |
302 |
506 |
282 |
243 |
663 |
263 |
224 |
| 4 |
840 |
332 |
382 |
641 |
357 |
307 |
840 |
332 |
282 |
| 5 |
895 |
349 |
386 |
700 |
367 |
330 |
896 |
350 |
310 |
| 6,3 |
1106 |
441 |
488 |
865 |
464 |
417 |
1106 |
441 |
394 |
| 8 |
1388 |
557 |
615 |
1085 |
585 |
529 |
1388 |
557 |
501 |
| № вентилятора |
Пр0°, Л0° |
Пр45°, Л45° |
Пр90°, Л90° |
|
B |
b |
H |
B |
b |
H |
B |
b |
H |
| 2,5 |
471 |
194 |
183 |
420 |
179 |
325 |
409 |
225 |
277 |
| 3,15 |
585 |
224 |
243 |
525 |
224 |
400 |
506 |
282 |
342 |
| 4 |
741 |
307 |
284 |
664 |
282 |
508 |
641 |
357 |
434 |
| 5 |
770 |
330 |
333 |
696 |
310 |
546 |
700 |
368 |
440 |
| 6,3 |
957 |
418 |
401 |
881 |
393 |
665 |
865 |
462 |
540 |
| 8 |
1204 |
529 |
500 |
1115 |
500 |
831 |
1085 |
585 |
675 |

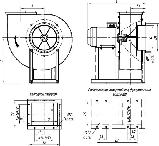
Габаритные и присоединительные размеры вентиляторов ВР 140-40 №2,5; №3,15; №4 исп-1
Габаритные размеры вентиляторов ВР 140-40 №2,5; №3,15; №4 исп-1
| № вентилятора |
D |
D1 |
C |
E |
b |
h |
L |
L1 |
L2 |
L3 |
| 2,5 |
140 |
170 |
175 |
150 |
162,5 |
300 |
445 |
106 |
24 |
80 |
| 3,15 |
215 |
245 |
221 |
189 |
205 |
395 |
515 |
132 |
55 |
80 |
| 4 |
264 |
294 |
280 |
240 |
260 |
520 |
690 |
168 |
93 |
10 |
| № вентилятора |
L4 |
L5 |
t1 |
t2 |
T1 |
T2 |
T3 |
T4 |
n1 |
n2 |
| 2,5 |
282 |
220 |
65 |
65 |
130 |
130 |
209 |
186 |
2 |
2 |
| 3,15 |
348 |
226 |
84 |
75 |
84 |
75 |
254 |
221 |
1 |
1 |
| 4 |
463 |
290 |
110 |
95 |
110 |
95 |
320 |
285 |
1 |
1 |

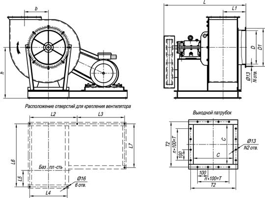
Габаритные и присоединительные размеры вентиляторов ВР 140-40 №5; №6,3; №8 исп-1
Габаритные размеры вентиляторов ВР 140-40 №5; №6,3; №8 исп-1
| № вентилятора |
D |
D1 |
C |
E |
b |
h |
L |
L1 |
| 5 |
350 |
390 |
300 |
300 |
250 |
550 |
850 |
250 |
| 6,3 |
440 |
500 |
378 |
378 |
315 |
670 |
1070 |
303 |
| 8 |
560 |
610 |
480 |
480 |
400 |
845 |
1350 |
388 |
| № вентилятора |
L2 |
L3 |
L4 |
T |
T2 |
N |
N2 |
n |
| 5 |
182 |
650 |
410 |
200 |
342 |
8 |
12 |
2 |
| 6,3 |
219 |
810 |
502 |
300 |
418 |
8 |
16 |
3 |
| 8 |
287 |
1078 |
690 |
400 |
520 |
12 |
20 |
4 |

Положение корпуса вентиляторов ВР 140-40 исп-5.
Габаритные размеры вентиляторов ВР 140-40 №5; №6,3; №8 исп-5.
| № вентилятора |
Пр0°, Л0° |
Пр45°, Л45° |
Пр90°, Л90° |
|
B |
b |
H |
B |
b |
H |
B |
b |
H |
| 5 |
1255 |
440 |
333 |
1200 |
386 |
546 |
1182 |
368 |
440 |
| 6,3 |
1579 |
539 |
401 |
1527 |
488 |
665 |
1504 |
462 |
540 |
| 8 |
1920 |
675 |
500 |
1860 |
615 |
831 |
1830 |
585 |
675 |
| № вентилятора |
Пр135°, Л135° |
Пр270°, Л270° |
Пр315°, Л315° |
|
B |
b |
H |
B |
b |
H |
B |
b |
H |
| 5 |
1164 |
349 |
386 |
1148 |
333 |
330 |
1362 |
846 |
310 |
| 6,3 |
1482 |
442 |
488 |
1440 |
401 |
417 |
1704 |
665 |
394 |
| 8 |
1802 |
557 |
615 |
1745 |
500 |
529 |
2076 |
831 |
501 |

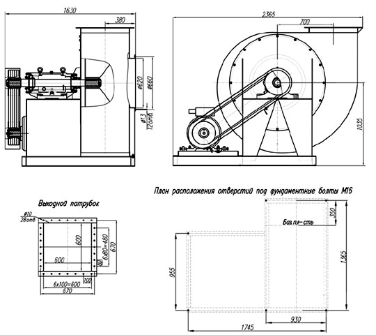
Габаритные и присоединительные размеры вентиляторов ВР 140-40 №5; №6,3; №8 исп-5
Габаритные размеры вентиляторов ВР 140-40 №5; №6,3; №8, 5 исполнение
| № вентилятора |
D |
D1 |
C |
b |
h |
L |
L1 |
L2 |
L3 |
| 5 |
вар-1 |
350 |
390 |
300 |
250 |
550 |
905 |
250 |
410 |
570 |
| вар-2 |
850 |
| 6,3 |
вар-1 |
440 |
500 |
378 |
315 |
670 |
1050 |
303 |
635 |
635 |
| вар-2 |
1050 |
| 8 |
вар-1 |
560 |
610 |
480 |
400 |
845 |
1480 |
388 |
785 |
785 |
| вар-2 |
1420 |
| № вентилятора |
L4 |
L5 |
L6 |
L7 |
T |
T2 |
N |
N2 |
n |
| 5 |
вар-1 |
410 |
170 |
725 |
526 |
200 |
342 |
8 |
12 |
2 |
| вар-2 |
670 |
| 6,3 |
вар-1 |
502 |
219 |
842 |
584 |
300 |
418 |
8 |
16 |
3 |
| вар-2 |
842 |
| 8 |
вар-1 |
690 |
287 |
1165 |
803 |
400 |
520 |
12 |
20 |
4 |
| вар-2 |
1100 |

Габаритные и присоединительные размеры вентиляторов ВР 140-40 №10 исп-1

Габаритные и присоединительные размеры вентиляторов ВР 140-40 №12 исп-1

Габаритные и присоединительные размеры вентиляторов ВР 140-40 №10 исп-5